Skip to main content

PRENÁJOM Obchodné priestory v centre moderného bývania R11

Popis nehnuteľnosti

Ponúkame na prenájom reprezentatívne priestory vhodné na obchodné, kancelárske alebo prevádzkové účely:

Lokalita: areál R11, Duklianska, Spišská Nová Ves
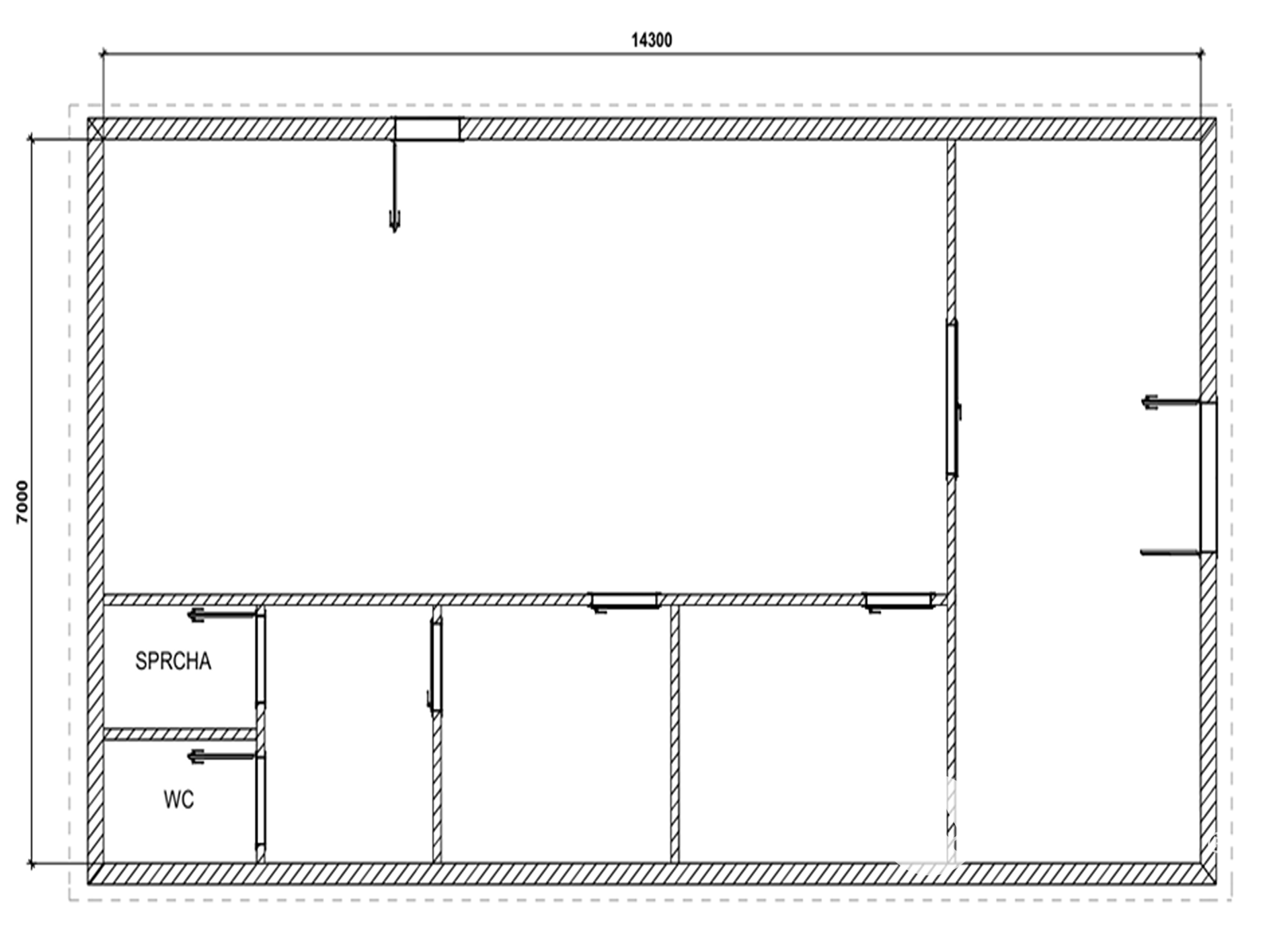
Úžitková plocha: 101 m²
Poschodie: prízemie
Dostupnosť: ihneď

Dispozícia priestorov:
- priestranná hlavná miestnosť
- 3 samostatné menšie miestnosti
- hygienické zázemie (sprcha a samostatné WC)

Technický stav a vybavenie:
- klimatizácia
- kamerový a bezpečnostný systém
- internet
- 1 vyhradené parkovacie miesto

Výhody: 
- možnosť dispozičných úprav podľa potrieb klienta
- dostatočný počet parkovacích miest 
- poloha v blízkosti centra mesta a v úplnej blízkosti obchodnej zóny

Cena prenájmu: 858,50,-€/mesiac + DPH
Zálohové platby za energie: 145,-€ /mesiac + DPH
Internet: 20,-€/mesiac + DPH

Obchodné centrum R11 - moderné bývanie je obchodný komplex, ktorý poskytuje obchodné, prezentačné, skladovacie a kancelárske priestory v biznis centre s variabilným usporiadaním dispozícií. Súčasťou centra je dostatočný počet parkovacích miest a zelené oddychové plochy.

Podmienkou nájomnej zmluvy je depozit vo výške dvoch mesačných nájmov. V prípade záujmu o bližšie informácie a obhliadku nás kontaktujte na tel. č.: 0948 979 997.

Prehľadová tabuľka

Referenčné číslo 1023
Typ Prenájom
Cena
1 023,50 € /mesiac +DPH
Celková plocha 101 m²
Druh Obchodné priestory
Obec Spišská Nová Ves
Okres Spišská Nová Ves
Kraj Košický kraj

Základné vlastnosti

Status:Aktívna
Kategória:Obchodné priestory
Stav:Novostavba
Úžitková plocha:101 m²
Vlastníctvo:Korporácia
Telekom. a dátové prípojky:Internet

Doplnkové vybavenie

Kontaktujte nás

Maklér
Daniela Olšanská
REALITNÝ MAKLÉR
0948979997

Newsletter

Najnovšie reality priamo do vášho e-mailu